【募集終了しました】市民参加型生物調査(みんなで作ろう!いせさき夏の生きもの図鑑)
多くの生物データの投稿ありがとうございました!
プレゼント企画に申し込みできる、生物投稿期間は終了しました。
たくさんの参加、投稿ありがとうございました。
(注意)アプリ「Biome(バイオーム)」については引き続き利用できます。
事業概要
ゲーム感覚で生物のコレクションができるアプリ「Biome(バイオーム)」を活用した市民参加型生物調査を実施しました。
収集したデータから「いせさき夏の生きもの図鑑」を作成して、ホームページで公表します。
Biome(バイオーム)は、誰でも利用できる無料のいきものコレクションアプリです。
撮影した生物の写真から自動判定AIが生物種を教えてくれるため、誰でも簡単に生物を調べることができます。
たくさんの生物をコレクションしていくことで、アプリ内のレベルが上がるなどゲームのように楽しみながら生物について学ぶことができます。
みんなで楽しみながら伊勢崎市内の生物を探してみませんか。
内容
Biome(バイオーム)で伊勢崎市限定の特別なクエストを実施しました。
クエスト期間内にBiome (バイオーム)に投稿されたデータから「いせさき夏の生きもの図鑑」を作成して公表します。(2月末ごろ掲載の予定です。)
自分が投稿した写真が図鑑に載るかもしれません!
(注意)Biome (バイオーム)は、国内の動植物約10万種に対応していますが、きのこなどの菌類には対応していません
クエスト(終了しました。)
伊勢崎市独自のクエストは、メインミッション1つとエクストラミッションが3つあります。
実施されていたミッション内容は以下の通りです。
メインミッション
伊勢崎市内の生物を10種類投稿せよ!!
期間:令和7年6月21日~令和7年9月23日
伊勢崎市内の動植物を何でもよいので10種類撮影して投稿してください。
もちろん10種類以上投稿しても大丈夫です。
良い写真は図鑑に採用されるかも!?
市内の夏の生きものを撮り尽くしましょう!!
エクストラミッション1
伊勢崎市内の特定外来生物「オオキンケイギク」と「クビアカツヤカミキリ」を投稿せよ!!
期間:令和7年6月21日~令和7年8月17日
特定外来生物であるオオキンケイギクとクビアカツヤカミキリを伊勢崎市内で撮影して投稿してください。
両方とも伊勢崎市内で繁殖の拡大が心配されている生物です。
オオキンケイギクは、きれいな黄色い花を咲かせ、市内の空き地や道端でもよく見かけますので、探してみましょう。
クビアカツヤカミキリの幼虫は、桜の木の根元などにフラスと呼ばれる木くずを大量に落とします。成虫だけでなく、このフラスを撮影して、クビアカツヤカミキリの「痕跡」として投稿することでもミッションをクリアできます。

オオキンケイギク

クビアカツヤカミキリ

フラス(クビアカツヤカミキリの痕跡)
オオキンケイギクの詳しい情報
クビアカツヤカミキリの詳しい情報
エクストラミッション2
夏休み期間中に伊勢崎市内の生物を5種類投稿せよ!!
期間:令和7年7月18日~令和7年8月31日
夏休み期間中に伊勢崎市内の生物を何でもよいので5種類投稿してください。
こどもは夏休みを利用して、大人は童心に帰って、身近な夏の生きものを探してみましょう!
熱中症や事故には気をつけてください。
エクストラミッション3
華蔵寺公園水生植物園内の生物を3種類投稿せよ!!
期間:令和7年9月1日~令和7年9月23日
華蔵寺公園水生植物園に行って、生物を何でもよいので3種類投稿してください。
植物だけでなく、水生植物園に現れる昆虫や鳥などの投稿も大歓迎です。
緑や水辺に集まる生物にも注目してみましょう。

現地には、水生植物以外にも、蝶やトンボ等の生きものを見ることができます。
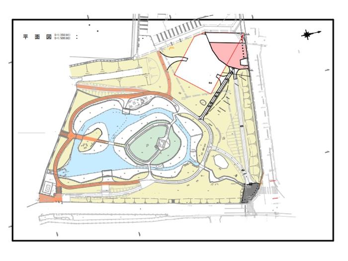
(注意)
現在、一部入れない場所があります。
工事中で危険なため、絶対に入らないでください。
左図、オレンジの遊歩道は入ることができます。
境界にはロープやコーンが置いてあります。
水生植物園図面_拡大図 (PDFファイル: 454.1KB)
Biome(バイオーム)投稿方法
Biome(バイオーム)をインストールして、アプリ内で伊勢崎市内の生物を投稿するだけです!
- スマホやタブレットで無料のアプリ、Biome(バイオーム)をダウンロード。
- 伊勢崎市内の生物を撮影。
- アプリでAIが判別した生物から正解と思われるものを選んで投稿。

投稿方法
Biome(バイオーム)のダウンロードはこちら(外部サイトに移動します)
プレゼントについて(10月中旬に発送予定です。)
たくさんの応募ありがとうございました。
応募した人の中で当選した人には、希望の商品の準備ができ次第、発送、付与します。
- プレゼント1 「オリジナルくわまるアクリルキーホルダー」 (抽選200人)
- プレゼント2 「ISECAポイント 500ポイント」 (抽選200人)
(注意)応募は1人1回までです。複数回応募した人は抽選の対象から外させていただくことがあります
オリジナルくわまるアクリルキーホルダー

いせさきGXのロゴに本市PRキャラクター「くわまる」が飛びついているデザインの非売品のアクリル製オリジナルキーホルダーです。
いせさきGXとは、環境問題の解決に向けた社会や個人の取り組みを一層加速させる、市独自の変革を表す言葉です。
市独自のGX(グリーントランスフォーメーション)を「いせさきGX」として、市が進める全ての施策や事業に「環境配慮」を取り入れ、市の取り組みのどこを取っても環境に配慮されたものとして進めていくことを目指します。
ISECAポイントについて
ISECAポイントには、有効期限があります。(令和8年2月ごろまで)
付与された人は、失効前に利用してください。
ISECAの利用については、下記リンクを確認してください。
バイオームを使用する際の注意事項
- 水辺の事故や交通事故のほか、熱中症にも注意してください
- 危険な生物には近づかないようにしてください
- 子どもが参加する場合は、保護者の確認をお願いします
- 歩きスマホ、ながらスマホは危険なのでやめてください
- 投稿できる写真は生物のみです(人を写さないようにしてください)
- 投稿されたデータは、生物多様性の保全などに活用されます
- 乱獲防止や生物保護の観点から、希少種や絶滅危惧種の位置情報は強制的に非公開になります
関連リンク・資料
この記事に関するお問い合わせ先
環境部環境政策課 環境企画係
〒372-0824 伊勢崎市柴町954番地 清掃リサイクルセンター21 管理棟2階事務室
電話番号 0270-27-2733
ファクス番号 0270-27-5388
更新日:2025年09月24日